TOWN HOUSE 33

Thames 2161

Noviembre 2009

BARRIO

Palermo. CABA

TERRENO / CONSTRUIDO

1.874 M2 / 9.765 M2

UNIDADES


64 Unidades / de 65 a 200 M2 / 2, 3, 4 ambientes y duplex

DESCRIPCIÓN

Esta magnífica torre se alza en el corazón del barrio más pintoresco de Buenos Aires, donde se multiplican las opciones de esparcimiento y diversión para el día y la noche. 
Una zona en pleno desarrollo, que día a día crece para mejor.
Cuenta con unidades de 2, 3 y 4 ambientes, semipisos y duplex, y una infinidad de amenities y servicios comunes.

 

CALIDAD

SERVICIOS

Lobby de doble y triple altura
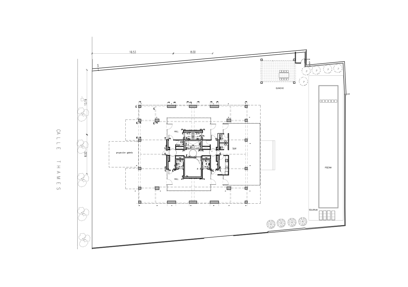
Jardines
Galería de arte 
Sky Club
Gimnasio
Saunas y vestuarios 
Jardines, piscina, parrilla, gazebos 
GuestRoom® 
Sala de Juegos 
Business Center 
Salón de Fiestas 
Sala de ensayos 
4 ascensores principales 
Ascensor de servicio 
Oficina de seguridad las 24 horas 
Portón corredizo automatizado.
Cocheras y bauleras.
Estacionamiento de cortesíaLaundry general.

 

x
fullscreen