TOWN HOUSE 29

Conde 1632

BARRIO

Belgrano R. CABA

TERRENO / CONSTRUIDO

1.635 M2 / 2596 M2

UNIDADES


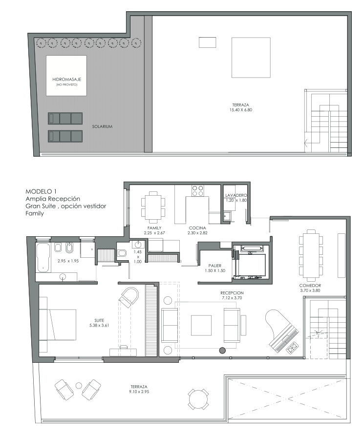
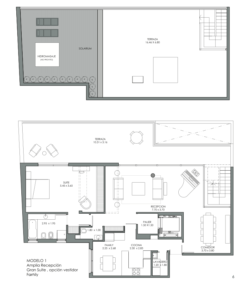
12 Unidades / de 150 a 180 M2 / Residencias

DESCRIPCIÓN

Condominio Boutique

En una ubicación privilegiada, sobre un solar de 3650M2, 12 únicas residencias de planta flexible. 

CALIDAD

SERVICIOS

Salón de usos multiple.
Gimnasio.
Sauna.
Hidromasaje.
Solarium.
Gran piscina.
Area de parrill.
Gran parque

x
fullscreen